RIF. 280G – BILOCALE AMMOBILIATO IN CENTRO TRADATE

€.159.000
MQ.74
RIFERIMENTO: 280G
TIPO DI CONTRATTO: VENDITA
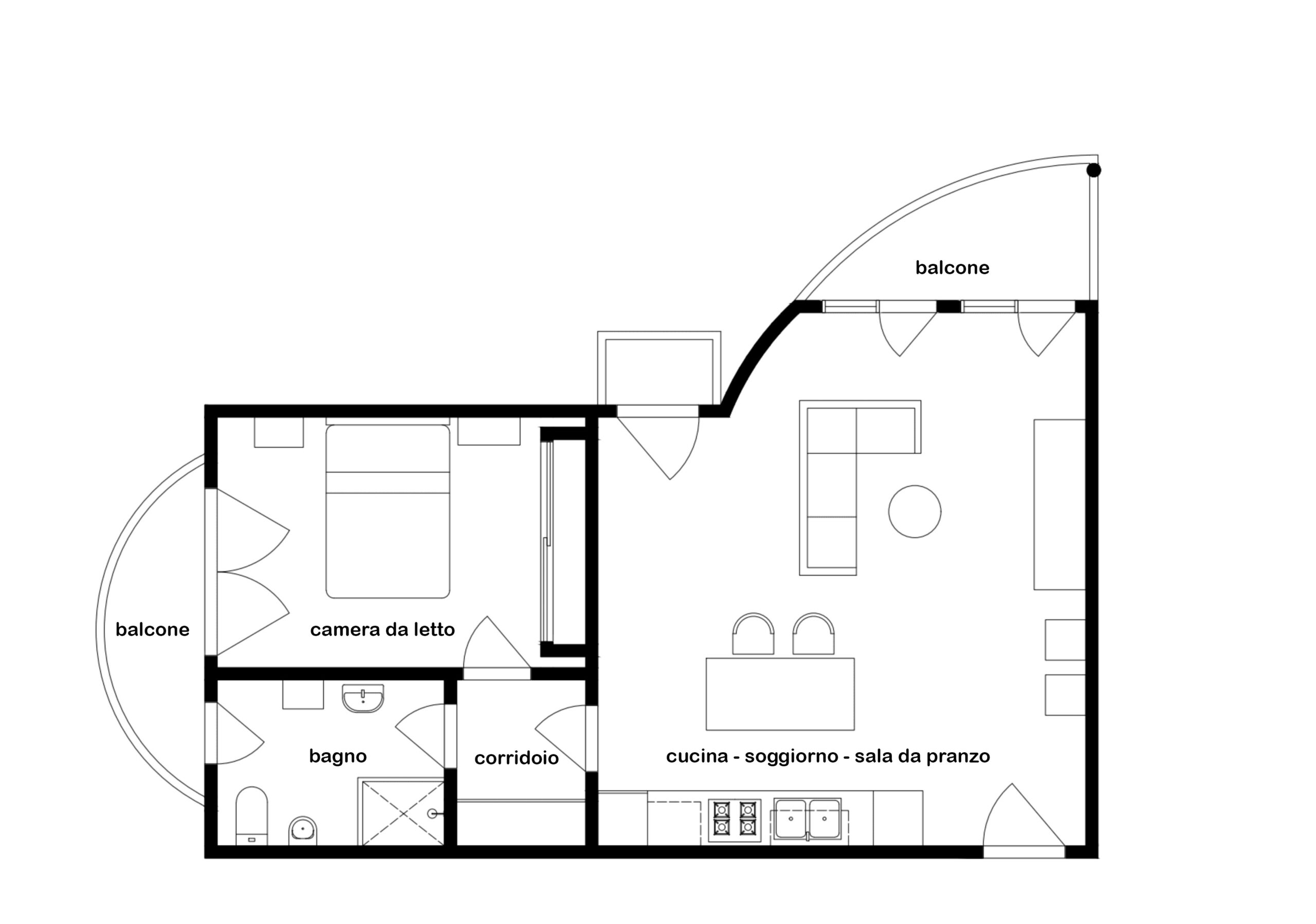
ATTENZIONE: QUESTA UNITÀ IMMOBILIARE E’ ENTRATA UFFICIALMENTE IN FASE DI TRATTATIVA PER CUI TEMPORANEAMENTE NON DISPONIBILE Scopri questo splendido appartamento bilocale posto al primo piano di un elegante condominio molto ben abitato e considerato uno dei più prestigiosi del centro città. L’angolo cottura, completamente arredato, si apre su un ampio e luminoso soggiorno, ideale per momenti di relax e convivialità. La camera da letto, accogliente e dotata di balcone, offre un ambiente riservato e confortevole, mentre il bagno, ben rifinito, garantisce funzionalità e comfort. Un piacevole terrazzino a servizio della zona giorno invita a godere di colazioni e pranzi all’aperto. Le spese condominiali contenute rendono questa soluzione ancora più interessante. Completa la proprietà una cantina ed un ampio box auto privato, incluso nel prezzo, un vero valore aggiunto in contesto urbano. Con una superficie commerciale di 74 mq, l’appartamento viene venduto completo di tutto l’arredo, ed è quindi pronto per essere abitato fin da subito. La soluzione si presta perfettamente sia come abitazione principale sia come investimento, grazie all’elevata redditività potenziale. L’edificio è servito da ascensore ed è situato in una zona moderna e ben collegata. Prezzo richiesto: € 159.000 RIF. 280G – Cl.D – IPE 168,54 Contattaci oggi stesso per fissare una visita e scoprire tutti i vantaggi di questa interessante proposta nel cuore di Tradate. DONINI IMMOBILIARE garantisce fin da subito la regolarità urbanistica e catastale dell’immobile, nonché la disponibilità dell’Attestato di Prestazione Energetica. DONINI IMMOBILIARE opera esclusivamente con incarichi in esclusiva, per tutelare e garantire i propri clienti al 100% in ogni fase della compravendita.

Guido Donini

0331 11 74 754 | info@doniniimmobili

orari di apertura

vieni a trovarci